Location: 303 Pearl Street, Boulder, Colorado

Type: Commercial; office space, fabrication, testing facility

Date: Fall 2019

Built with: Revit, Enscape, Photoshop, Nature Inspirations

Circuition Skateboard Co.

The timeless loop of sand dunes and cliffsides lend inspiration to a Skateboard Company Headquarters in Boulder, CO.

 

View from Pearl Street

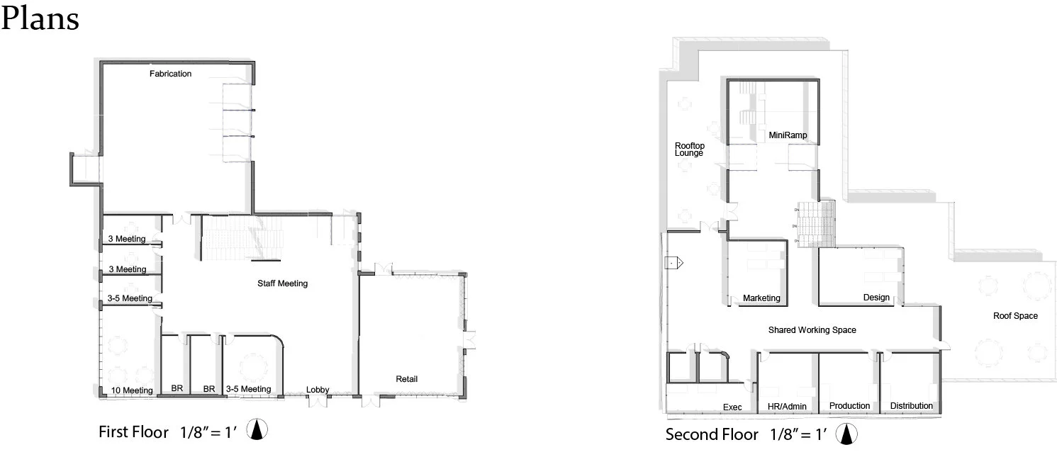
The company is a skater owned, skater operated distributor of all things skateboard. As a staple in the community, they need to be able to properly test and demonstrate their wares as well as enjoy the fruits of their labor. To create a perfect space for this, the northeast of the site was kept open as a skate plaza and garden. On the first floor, conference rooms and an employee kitchen are flanked by the retail area and the production shop. Ascending the multi-purpose staircase, offices for every department face outward, with a central working space for collaborating. Multiple balconies provide much needed escape from work and opportunites for team building while soaking up the view of the flatirons. The employee lounge includes a mini-ramp for blowing off steam or getting into the zone, and can function as workspace for a more casual day at the office.

Asset 5-100.jpg
 
Asset 6-100.jpg
 
Asset%2B8-100.jpg
 
Asset 1-100.jpg
Asset+2-100.jpg
Asset+3-100.jpg
Previous
Previous

Competition Entry For IAAC

Next
Next

Prefabricated Residential